![]() |
![]() |
ACTION: DMB brake is an electromagnetic actuated type which produces the braking force when the coil is excited. Exciting the coil, field magnetizes rotor and armature is attracted to the facing, and then braking force is produced with its friction. Interrupting the coil current, magnet releases armature with release spring to the former disconnected position. Clutch torque is adjustable to change the coil current. |
| MERITS: |
| 1.Firm body. | F | Simple body of single disc brings less trouble and long life. |
| 2.Easy install and maintenance | F | Easy to install and adjust, for mounted by a few set bolts. |
| 3.Quick response. | F | Dry and single disc brings quick response of braking force. |
| 4.Torque adjustment. | F | Continuaus, quick and slow torque change is possible by resister. |
| 5.Large heat dissipation. | F | High frequent operation is avairable by its large heat radiation. |
| 6.Reasnable structure. | F | One body structure of coil and facing brings reasonable costs. |
| Major characteristics. |
|
characteristics
|
model No.
|
||||||||
|
30
|
40
|
50
|
60
|
80
|
100
|
120
|
|||
|
7
|
20
|
40
|
60
|
150
|
280
|
550
|
||
|
90
|
||||||||
|
874
|
794
|
481
|
426
|
229
|
210
|
136
|
||
|
0.10
|
0.11
|
0.19
|
0.21
|
0.39
|
0.43
|
0.66
|
||
|
52
|
70
|
139
|
327
|
471
|
716
|
1047
|
||
|
240
|
470
|
610
|
1150
|
1610
|
1990
|
3660
|
||
|
1800
|
||||||||
|
0.86
|
2.28
|
2.51
|
4.39
|
7.73
|
10.8
|
22.0
|
||
| Note) Insuration level is E class. Atomospher temp : -15` +40 The initial torque is 50`60% of the rated. Please refer to us for the models not listed above. |
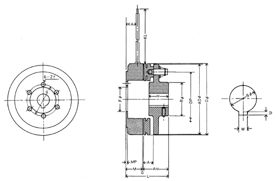
| Major dimensions. |
|
Dimension
|
model No.
|
||||||
|
30
|
40
|
50
|
60
|
80
|
100
|
120
|
|
|
D
|
76
|
110
|
128
|
162
|
218
|
267
|
325
|
|
G
|
0.5
|
0.5
|
0.5
|
0.5
|
0.7
|
0.7
|
1.0
|
|
H
|
20
|
29
|
32
|
40
|
45
|
65
|
75
|
|
L
|
60
|
76.7
|
76
|
87
|
96.4
|
91.7
|
105.5
|
|
P
|
86
|
124
|
56
|
68
|
108
|
156
|
182
|
|
SH7 standard dia of shaft hole@Σ
|
14/16
|
16/18
|
18/22
|
28/32
|
32
|
42
|
50
|
|
Max. avairable dia of shaf hole@Σ
|
18
|
28
|
35
|
40
|
38
|
60
|
60
|
| Illustration. |
![]() |
| Please specify followings on your order. |
| 1. | Brake name. Type and model No. | @ | |
| 2. | Brake torque. |
Nm
|
|
| 3. | Diameter of shaft hole. |
Σ
|
|
| 4. | Input voltage. |
(of power unit)@@AC/DC
|
V
|
| 5. | Power source unit. |
Model No.
|
V
|
| 6. | Former mfg.No. (for replacement) | No. (for replacement) | |
| 7. | Special spec. | @ | |
| 8. | Reqired pieces and delivery date |
Piece.
|
Date. |
| 9. | Your name and company name. |
@
|
|
| 10. | Your correspondence No. | Tel/Fax/E-mailF | |